Villa d’epoca indipendente a Intra, giardino e portico

Verbania, Via della Resistenza, Piémont, Italie

EUR 620.000
  1. Honoraires 3,5%
  1. Demeure historique
  2. Année de construction 1900
  3. 287 m² Surface totale
  4. 680 m² Surface du terrain
  5. 8 Chambres
  6. 6 Chambres
  7. 3 Salle de bain
  8. 3 No. d'étages

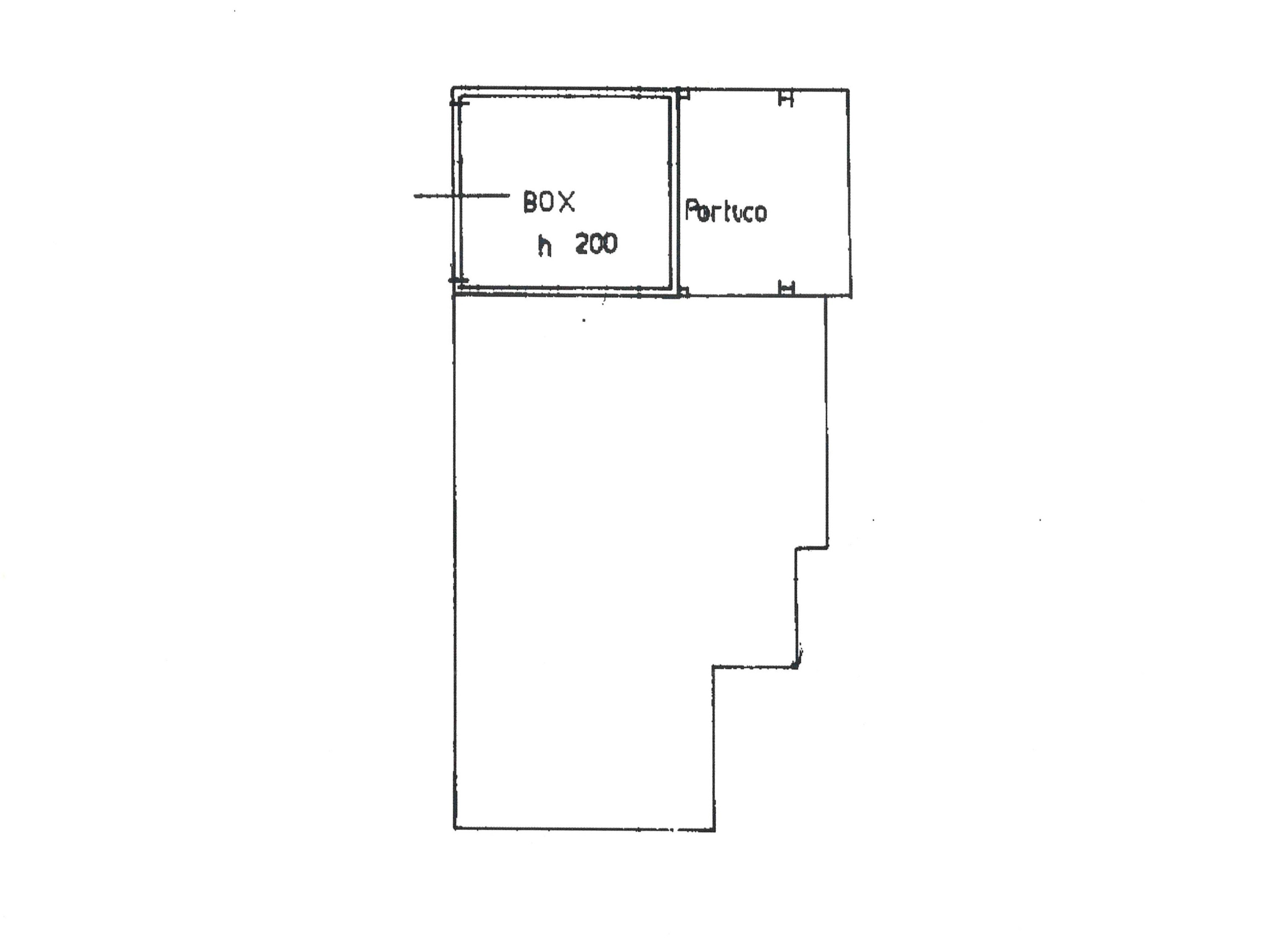
Villa d’epoca indipendente nel cuore di Intra, con giardino, portico e autorimessa. Ampi spazi da personalizzare, a due passi dal lago

Nella primissima vicinanza al centro di Intra, in posizione strategica e comoda a tutti i principali servizi, proponiamo in vendita un’elegante villa indipendente dei primi del ’900, circondata da un piacevole giardino privato e dotata di autorimessa e ampio portico, ideale per vivere momenti di relax all’aperto in totale riservatezza.

La proprietà, mantenuta allo stato originale, si sviluppa su quattro livelli collegati da scala interna e si distingue per gli ambienti ampi, ben distribuiti e straordinariamente luminosi. Una dimora di grande fascino, che si presta a un’attenta personalizzazione capace di coniugare il comfort contemporaneo con il sapore autentico dell’epoca, esaltandone dettagli architettonici e materiali originari per creare un’atmosfera di raffinata eleganza.

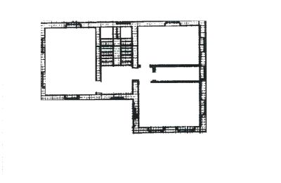
Al piano interrato troviamo due spaziosi locali, tra cui il vano caldaia, caratterizzati da suggestivi soffitti a volta che richiamano il gusto storico della villa.

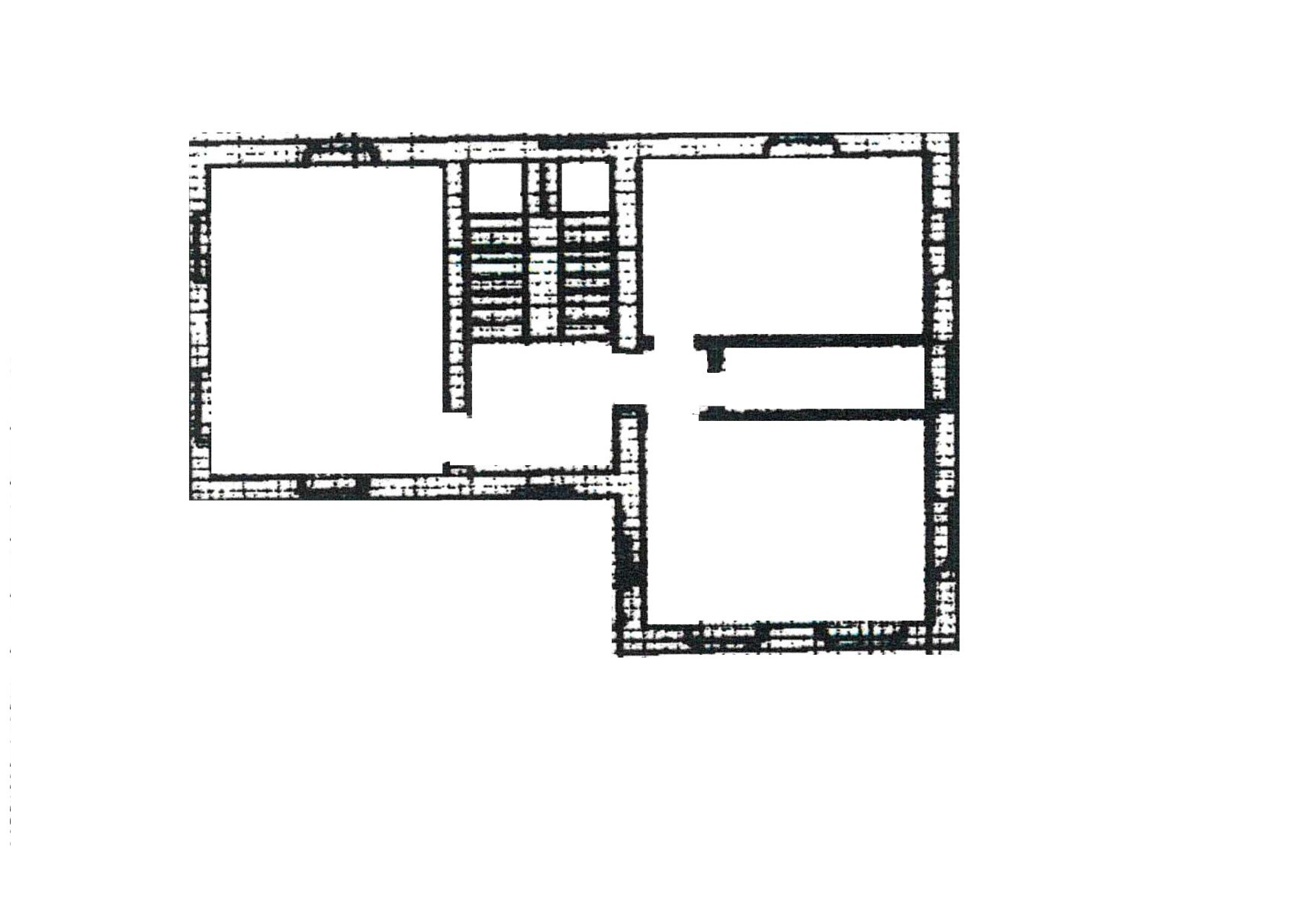
Il piano terra accoglie con un ingresso signorile che conduce a una camera con camino, perfetta come studio o sala lettura, un ampio salone anch’esso impreziosito dal camino, cucina abitabile e locale lavanderia.

Il primo piano ospita la zona notte principale, composta da una camera padronale di generose dimensioni con bagno privato, oltre ad altre due camere e un secondo bagno.

All’ultimo livello, mansardato ma ben fruibile, si sviluppano ulteriori tre camere e un bagno, spazi ideali per ospiti, area hobby o studio professionale.

Una villa importante, ricca di potenzialità, perfetta per chi desidera realizzare una residenza di charme, elegante e rappresentativa, senza rinunciare alla comodità del centro, facilmente raggiungibile a piedi così come il suggestivo lungolago.
 

Plans d'étage

Mentions légales

Agence immobilière

Città Ideale

Corso Mameli 203

28921 Verbania Intra

Italie
Contact
Fixe: +39 0323 407435
S'abonner à Città Ideale

Recevez les nouvelles offres immobilières de cette agence par e-mail. L'ordre de recherche peut être désactivé à tout moment.

  • REALPORTICO-ID
    2795073
  • Mis à jour
    Il y a 25 jours
  • Vues
    883
  • Personnes atteintes
    736
Top 10 des pays pour cette propriété
Vues des 30 derniers jours

Città Ideale

Plus d’offres de cet annonceur

28823 Ghiffa, Piémont
Demeure historique avec vue sur le lac Majeur
28040 Lesa, Piémont
Lumineux penthouse de 150 m² dans un palais historique au bord du lac de Lesa
Verbania, Piémont
Centre de Verbania Intra – Demeure de style Liberty avec jardin privé