Photos Palazzo Benanduci: a 17th-century landmark in the historic heart of Francavilla Fontana

Francavilla Fontana Hôtel particulier à vendre

Palazzo Benanduci: a 17th-century landmark in the historic heart of Francavilla Fontana

Francavilla Fontana, Corso Umberto Primo 6, Pouilles, Italie

EUR 1.500.000
  1. Prix négociable
  2. Honoraires 5%
  1. Hôtel particulier
  2. Année de construction 1600
  3. Monument historique
  4. 1 600 m² Surface totale
  5. 1 300 m² Surface habitable
  6. 1 300 m² Surface utile
  7. 425 m² Surface du terrain

Set on a prominent corner between Via Benanduci and Corso Umberto I—just a short walk from Castello Imperiali, the main church and Piazza Umberto I—Palazzo Benanduci is a remarkable historic property offered for sale in Francavilla Fontana’s old town. The building is protected under an Italian ministerial decree recognising its historic and artistic significance, making it a rare opportunity for a carefully curated restoration project.

While the exact construction date is unknown, the palace stands where the ancient Porta di San Nicola once marked the city’s defences, already shown on Centonze’s 1643 maps. Over centuries, the property evolved alongside the town’s growth, and traces of those changes remain visible—sealed openings, reconfigured ground-floor access and later balcony additions that narrate its long life.

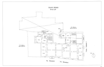
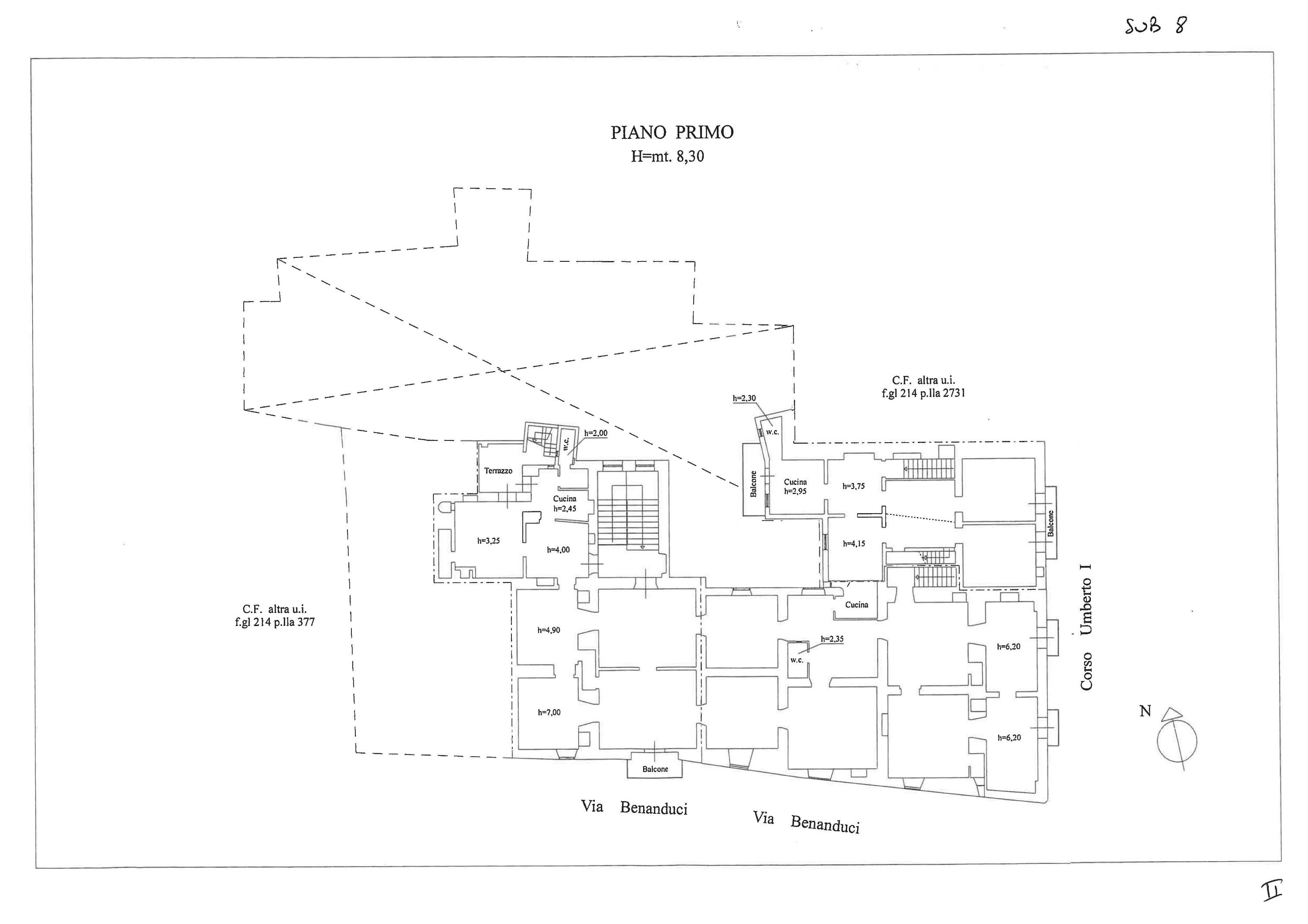
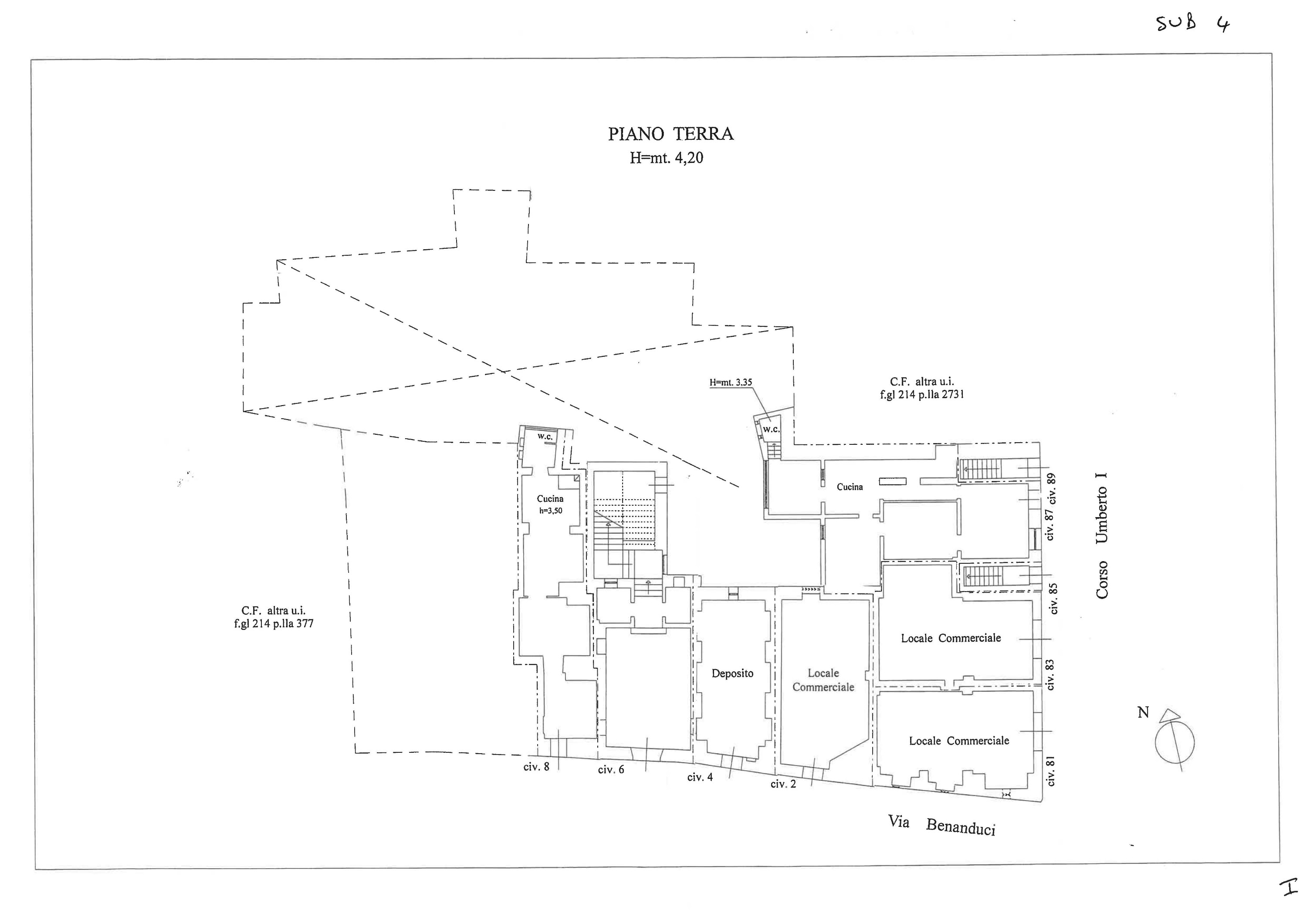
The palace rises over two above-ground levels. Historically, the ground floor served as storage and goods handling, while the piano nobile (first floor) was the formal residential level. The main entrance from Via Benanduci features a distinctive stone portal, topped by a balcony, leading into a grand entrance hall with a star-vaulted ceiling and traditional chianche stone flooring. A striking stone staircase then leads to the piano nobile, where you’ll find the classic layout of noble residences: generous vaulted rooms with impressive ceiling heights, divided by original 17th-century wooden doors.

The first floor measures approximately 705 sq m, with access and frontage both to Via Benanduci and to Corso Umberto I, where additional rooms belonging to the property were also used in more recent times. The ground floor totals approximately 714 sq m, with parts now featuring commercial use.

A standout feature is the private, enclosed internal garden of around 425 sq m—a genuinely uncommon asset in a dense historic centre, perfect for enhancing either a prestigious private residence or an upscale hospitality concept.

The property also includes technical volumes on the second level of about 200 sq m, plus a substantial amount of outdoor space: terraces and balconies totalling around 500 sq m.

A full renovation is required (although a portion was used as professional offices until a few years ago), and any works must respect the heritage protection. Thanks to its scale, location and identity, the palace lends itself naturally to a boutique hotel or high-end hospitality project, a statement private residence, or a mixed use concept combining cultural/professional spaces with commercial units on the ground floor.

Regional incentives note (Puglia): PIA & Mini PIA
In Puglia, investment projects—particularly in tourism and hospitality—may, subject to eligibility and open calls, benefit from regional incentive schemes such as PIA and Mini PIA (typically a mix of grants and/or facilitated finance to support refurbishment and development). We can assist with an initial feasibility check, documentation overview and project set-up.

Mentions légales

Agence immobilière

Oikos Immobiliare SRL

Via Latiano 7

72024 Oria

Italie
Directeur général
Diego Moretto
Informations société
Autorité de contrôle
FIAIP - Brindisi IQI country manager
Contact
Mobile: +393282252086
Fixe: +39 083 184 5686
S'abonner à Oikos Immobiliare SRL

Recevez les nouvelles offres immobilières de cette agence par e-mail. L'ordre de recherche peut être désactivé à tout moment.

  • REALPORTICO-ID
    2714528
  • Mis à jour
    Il y a un mois
  • Vues
    1.56k
  • Personnes atteintes
    1.36k
Top 10 des pays pour cette propriété
Vues des 30 derniers jours

Oikos Immobiliare SRL

Plus d’offres de cet annonceur

Ostuni, Pouilles
Maison bourgeoise rénovée haut de gamme au cœur d’Ostuni, avec terrasses panoramiques
Italie
Demeure dans les Pouilles avec jardin à l’italienne, piscine et dépendance
Manduria, Pouilles
Domaine de 52 hectares dans les Pouilles comme propriété d'investissement